 |
|
|
內蒙古博思達科技有限公司
地址:呼和浩特市大學西街110號豐業
大廈六樓
郵編:010020
電話:0471-6922249/6959871
傳真:0471-6911089
郵箱:info@m.11g37f.cn
網址:www.m.11g37f.cn
|
|
|
|
|
|
|
|
|
| |
| |
輔助設備 |
|
 |
您的位置> > 產品展示>輔助設備 |
|
|
|
|
BE系列斗士提升機
|
|
添加時間:2012/2/9
瀏覽次數:18388
作者:admin |
 |
|
|
|
☆用途 馬鈴薯、木薯、紅薯、小麥及其它塊莖壯物料的輸送; ☆結構特點 破損率低;結構簡單、易損件少、維護方便;
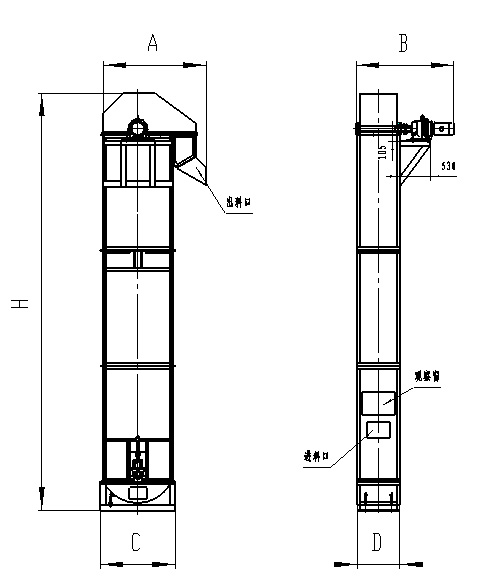
☆性能參數: | 規格型號 | 料斗寬度(㎜) | 轉速(r/min) | 電機功率(kw) | 處理量(噸馬鈴薯/h) | 凈重(kg) | | DE400 | 400 | 50 | 5.5/7.5 | 10--30 | 1950 | | DE500 | 500 | 50 | 11/15 | 35--45 | 2380 | 附圖 
☆主要外形尺寸: | 規格型號 | A | B | C | D | H | | DE400 | 1785 | 1690 | 1300 | 730 | 根據用戶定 | | DE500 | 1885 | 1790 | 1400 | 830 | 根據用戶定 | |
|
|
|
|
|
|